高台のアーチで待ち合わせ
2LDK(65.02㎡)
働き方が多様化し、自宅にリモートワーク環境を整えることも大事になってきました。2階、3階に空間が分かれているメゾネットやトリプレットなら、ワークスペースとベッドルームをフロアごと分けて、オン・オフにめりはりをつけることができます。福岡のおすすめのメゾネット、トリプレット物件をまとめました。
text : Ren Terakado from goodroom 福岡

天井の高い空間はメゾネットならではの利点。打ちっぱなしの壁もかっこいいですね。

1階はバス&トイレ、2階にキッチン&ダイニング。そしてロフトが寝室、というタイプのお部屋です。2階のダイニングには大きなテーブルを置いて、食事兼仕事のスペースにしたい。

ロフトには大きめのマットレスを置いて、寝室兼くつろぎのスペースとして、うまく活用したいですね。


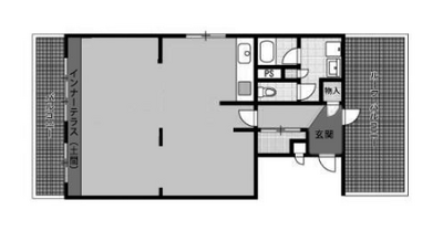
人気の薬院エリアにグッドルームオリジナルリノベーション賃貸TOMOSのお部屋が登場。80㎡超えのゴージャスなメゾネットです。下階には11.6畳と広々のLDK。

上階には7.5畳&たっぷり収納の洋室が2部屋。

水回りスペースの隣には、琉球畳の小上がりがあります。ライフスタイルに応じて、いろんな使い方ができそうです。※完成前のため鏡が未設置です。


中洲川端駅から徒歩5分。天神にも歩いていける立地の、トリプレットです。階段がかっこいいですね。

2階部分にキッチン・ダイニング、階段を挟んでリビング。木目のある床と白いキッチンがカフェ風のインテリアに似合いそうです。

3階には寝室と、ちょっとしたルーフバルコニーつき!日差しもよく入って明るいです。


コンクリート打ちっぱなしの壁と、天井の高い空間がTHEデザイナーズなメゾネットです。

下の階には寝室にも使えそうなサービスルームとたっぷりの収納があり、キッチンは上の階に分かれているので、より仕事に集中しやすい環境を作るのにおすすめ。

キッチンの前には小上がりが。小休憩に、ここでのランチやカフェタイムがちょうど良さそう。


博多駅徒歩13分の便利な場所に誕生した和モダンな長屋。1階には琉球畳でくつろげるスペース。文机を置いて、文豪気分で仕事するのも良さそうです。

2階には高いところで3メートルとなかなか高さのある6畳のお部屋。

2020年9月築と、築浅のお部屋のため、キッチンやお風呂、洗面台なども新しく、設備が整っているのも嬉しいところです。

※掲載家賃は管理費込みです。変更、満室になる可能性があります。
寺門廉
寺門廉
グッドルーム・メディア事業部所属。18年5月に来福以降、すっかり福岡の虜になりました。物件モンスター(いい意味で笑)を目指して日々あらゆる物件サイトを徘徊中。これからもグッドルームの、そして福岡の魅力を発信していきます。